Ulubione projekty
Twoja lista jest pusta
Dodano projekt
Usunięto projekt
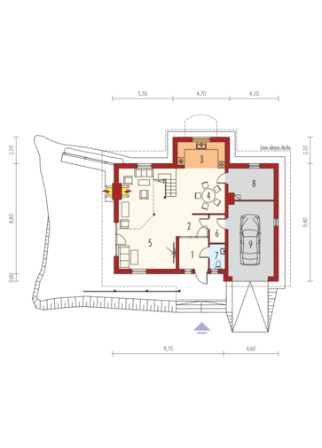
- Powierzchnia użytkowa 132.43 m²
- Powierzchnia zabudowy 148.95 m²
- Pow. netto 222.22 m²
- Kubatura 488.88 m³
- Wymiary budynku 14.30 × 11.50 m
- Wysokość budynku 7.45 m
- Kąt nachylenia dachu 35o
- Powierzchnia dachu 235 m²
- Minimalne wymiary działki 26.00 x 21.50 m
Cena projektu
2 000 pln
2 500 pln
- Katalogowa karta projektu (758 KB)
- Kasia G1 - charakterystyka energetyczna (wersja domu z wentylacją grawitacyjną)Budynek spełnia wymagania WT2017 (528 KB)
- Kasia G1 - charakterystyka energetyczna (wersja domu z wentylacją mechaniczną)Budynek spełnia wymagania WT2017 (528 KB)
- Kasia G1 - zestawienie materiałów H+H (288 KB)
- Kasia G1 - zestawienie materiałów SSO (38 KB)
- Kasia G1 - zestawienie materiałów SSZ (43 KB)
- Kasia G1 - zestawienie materiałów SD (47 KB)
Zadaj pytanie do projektu Kasia G1
Jesteś zainteresowany/a tym projektem? Architekt dyżurny przygotuje dla Ciebie materiały z projektu technicznego. Zostaw nam swoje dane, powiadomimy Cię, gdy pliki będą dostępne.
Zamawiając usługi forum i dzienników budowy, przyjmujesz do wiadomości i wyrażasz zgodę na świadczenie tych usług i przetwarzanie przez Usługodawcę, którym jest Pracownia Projektowa ARCHIPELAG A. Wójciak, R. Wójciak Sp. J., jako Administratora danych, podanych w formularzu danych osobowych, na zasadach wskazanych w Regulaminie i Polityce Prywatności serwisu ARCHIPELAG.pl.
Jeśli chcesz także otrzymywać bonusy i informacje dotyczące akcji promocyjnych naszych i naszych Partnerów, wyraź zgodę dodatkową i zaznacz odpowiednie pole. Wyrażam zgodę na przetwarzanie moich danych osobowych przez administratora, którym jest Pracownia Projektowa ARCHIPELAG A. Wójciak, R. Wójciak Sp. J. z siedzibą: ul. M. Smoluchowskiego 56/3, 50-372 Wrocław, nr KRS 0000123673, NIP: 897-16-05-744, REGON: 931987209:
Na podstawie art. 13 Rozporządzenia Parlamentu Europejskiego i Rady (UE) 2016/679 z dnia 27 kwietnia 2016 r. w sprawie ochrony osób fizycznych w związku z przetwarzaniem danych osobowych i w sprawie swobodnego przepływu takich danych oraz uchylenia dyrektywy 95/46/WE (RODO) informujemy Cię, że (przeczytaj klauzulę informacyjną):
czytaj całość ›Zużycie energii
Wskaźnik EP dla domu z wentylacją grawitacyjną (szczegółowe dane w charakterystyce energetycznej)
Wskaźnik EP określa roczne zapotrzebowanie domu na nieodnawialną energię pierwotną do ogrzewania, wentylacji oraz przygotowania ciepłej wody użytkowej.
Szacunkowy koszt budowy
| STANDARDOWE (uśrednione) [zł] |
||
|---|---|---|
| Stan surowy otwarty: | 288 886 (1) | |
| Stan surowy zamknięty: | 355 552 (1) | |
| Stan deweloperski: | 588 883 (1) | |
| Instalacje wewnętrzne: | 58 888 (1) | |
|
(1) Wyliczone według współczynników (2) Wyliczone według kosztorysu |
||
Opinia eksperta
Forum (11)
Ostatnie tematy:
- Kasia [91] gość, 2014-12-27 01:56
- Projekt KASIA [1] gość, 2013-04-17 17:04
- KASIA [0] gość, 2011-01-23 21:09
- Tez jestesmy... [11] gość, 2010-10-22 08:15
Dzienniki budowy
Archipelag dla Ciebie
Polecane technologie
Wypełnij formularz, skontaktujemy się z Tobą.
Zamawiając usługi forum i dzienników budowy, przyjmujesz do wiadomości i wyrażasz zgodę na świadczenie tych usług i przetwarzanie przez Usługodawcę, którym jest Pracownia Projektowa ARCHIPELAG A. Wójciak, R. Wójciak Sp. J., jako Administratora danych, podanych w formularzu danych osobowych, na zasadach wskazanych w Regulaminie i Polityce Prywatności serwisu ARCHIPELAG.pl.
Jeśli chcesz także otrzymywać bonusy i informacje dotyczące akcji promocyjnych naszych i naszych Partnerów, wyraź zgodę dodatkową i zaznacz odpowiednie pole. Wyrażam zgodę na przetwarzanie moich danych osobowych przez administratora, którym jest Pracownia Projektowa ARCHIPELAG A. Wójciak, R. Wójciak Sp. J. z siedzibą: ul. M. Smoluchowskiego 56/3, 50-372 Wrocław, nr KRS 0000123673, NIP: 897-16-05-744, REGON: 931987209:
Na podstawie art. 13 Rozporządzenia Parlamentu Europejskiego i Rady (UE) 2016/679 z dnia 27 kwietnia 2016 r. w sprawie ochrony osób fizycznych w związku z przetwarzaniem danych osobowych i w sprawie swobodnego przepływu takich danych oraz uchylenia dyrektywy 95/46/WE (RODO) informujemy Cię, że (przeczytaj klauzulę informacyjną):
czytaj całość ›




Uroczy, lekko rustykalny projekt budynku w którym główną rolę odgrywa dach podparty od frontu drewnianymi słupami werandy oraz charakterystyczny kamienny komin z paleniskiem otwartym do wnętrza jak i na zewnątrz budynku. Ściany budynku zaprojektowane z materiału najczęściej stosowanego w budownictwie jednorodzinnym, czyli z bloczków z betonu komórkowego. Jako podstawę konstrukcji budynku użyto Systemu Budowy H+H, który oparty jest o bloczki posiadające system pióro-wpust oraz tolerancję wymiarową ± 1 mm. Dzięki tym właściwościom otrzymujemy materiał ścienny przeznaczony do murowania na zaprawie do cienkich spoin gr. 1÷2 mm, co tworzy ścianę energooszczędną, praktycznie pozbawioną mostków termicznych.
czytaj więcej