Ulubione projekty
Twoja lista jest pusta
Dodano projekt
Usunięto projekt
- Powierzchnia użytkowa 155.27 m²
- Dodatkowo:
- kotłownia 3.38 m²
- pom. gospodarcze 2.67 m²
- garaż 18.86 m²
- Powierzchnia zabudowy 144.46 m²
- Pow. netto 249.29 m²
- Kubatura 592.06 m³
- Wymiary budynku 12.80 × 11.90 m
- Wysokość budynku 9.24 m
- Kąt nachylenia dachu 40o
- Powierzchnia dachu 227 m²
- Minimalne wymiary działki 20.80 x 22.60 m
Cena projektu
2 240 pln
2 800 pln
- Katalogowa karta projektu (676 KB)
- Karmina G1 - charakterystyka energetyczna (wersja domu z wentylacją grawitacyjną)Budynek spełnia wymagania WT2017 (534 KB)
- Karmina G1 - charakterystyka energetyczna (wersja domu z wentylacją mechaniczną, rekuperacja)Budynek spełnia wymagania WT2017 (535 KB)
- Karmina G1 - materiały z projektu technicznego (1146 KB)
- Karmina G1 - materiały z projektu technicznego (odbicie lustrzane) (1145 KB)
- Karmina G1 - zestawienie materiałów SSO (40 KB)
- Karmina G1 - zestawienie materiałów SSZ (46 KB)
- Karmina G1 - zestawienie materiałów SD (50 KB)
Zadaj pytanie do projektu Karmina G1
Jesteś zainteresowany/a tym projektem? Architekt dyżurny przygotuje dla Ciebie materiały z projektu technicznego. Zostaw nam swoje dane, powiadomimy Cię, gdy pliki będą dostępne.
Zamawiając usługi forum i dzienników budowy, przyjmujesz do wiadomości i wyrażasz zgodę na świadczenie tych usług i przetwarzanie przez Usługodawcę, którym jest Pracownia Projektowa ARCHIPELAG A. Wójciak, R. Wójciak Sp. J., jako Administratora danych, podanych w formularzu danych osobowych, na zasadach wskazanych w Regulaminie i Polityce Prywatności serwisu ARCHIPELAG.pl.
Jeśli chcesz także otrzymywać bonusy i informacje dotyczące akcji promocyjnych naszych i naszych Partnerów, wyraź zgodę dodatkową i zaznacz odpowiednie pole. Wyrażam zgodę na przetwarzanie moich danych osobowych przez administratora, którym jest Pracownia Projektowa ARCHIPELAG A. Wójciak, R. Wójciak Sp. J. z siedzibą: ul. M. Smoluchowskiego 56/3, 50-372 Wrocław, nr KRS 0000123673, NIP: 897-16-05-744, REGON: 931987209:
Na podstawie art. 13 Rozporządzenia Parlamentu Europejskiego i Rady (UE) 2016/679 z dnia 27 kwietnia 2016 r. w sprawie ochrony osób fizycznych w związku z przetwarzaniem danych osobowych i w sprawie swobodnego przepływu takich danych oraz uchylenia dyrektywy 95/46/WE (RODO) informujemy Cię, że (przeczytaj klauzulę informacyjną):
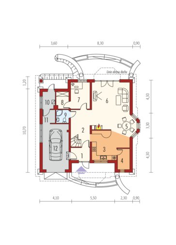
czytaj całość ›Parter
- 1. Wiatrołap 3.83 m²
- 2. Hol + schody 12.26 m²
- 3. Kuchnia 11.76 m²
- 4. Spiżarnia 4.06 m²
- 5. Jadalnia 10.18 m²
- 6. Pokój dzienny 24.80 m²
- 7. Gabinet 8.22 m²
- 8. Garderoba 3.37 m²
- 9. Łazienka 2.68 m²
- 10. Kotłownia 3.38 m²
- 11. Pom. gospodarcze 2.67 m²
- 12. Garaż 18.86 m²
Zużycie energii
Wskaźnik EP dla domu z wentylacją grawitacyjną (szczegółowe dane w charakterystyce energetycznej)
Pobierz charakterystykę energetyczną:
Wskaźnik EP określa roczne zapotrzebowanie domu na nieodnawialną energię pierwotną do ogrzewania, wentylacji oraz przygotowania ciepłej wody użytkowej.
Szacunkowy koszt budowy
| STANDARDOWE (uśrednione) [zł] |
||
|---|---|---|
| Stan surowy otwarty: | 324 077 (1) | |
| Stan surowy zamknięty: | 398 864 (1) | |
| Stan deweloperski: | 660 618 (1) | |
| Instalacje wewnętrzne: | 66 061 (1) | |
|
(1) Wyliczone według współczynników (2) Wyliczone według kosztorysu |
||
Forum (8)
Ostatnie tematy:
- Karmina [6] gość, 2017-01-15 18:20
- wykończenie [4] gość, 2017-01-15 18:18
- Wielkopolska [0] gość, 2015-11-22 23:51
- czy ktoś buduje lub... [1] gość, 2012-08-04 17:04
Dzienniki budowy
4razyAB
- NASZ OGRÓD 2017-03-10
- wnętrza 2015-02-02
- MAMY JUŻ KOSTKĘ i... 2015-02-01
- WYBÓR... 2015-02-01
wiktoria
- karmina zimą 2009-01-03
- karmina 2008-12-11
- więźba dachowa... 2008-09-15
Marcin634
- Ocieplenie i... 2009-09-21
- Kominek 07.2009 2009-08-07
- Tynki i wylewki... 2009-08-07
- Instal. C.O i woda... 2009-08-07
pawel8
- Dach 2009-01-05
- ściany 2009-01-05
- Piwnica 2009-01-03
Realizacje(1)
Archipelag dla Ciebie
Polecane technologie
Wypełnij formularz, skontaktujemy się z Tobą.
Zamawiając usługi forum i dzienników budowy, przyjmujesz do wiadomości i wyrażasz zgodę na świadczenie tych usług i przetwarzanie przez Usługodawcę, którym jest Pracownia Projektowa ARCHIPELAG A. Wójciak, R. Wójciak Sp. J., jako Administratora danych, podanych w formularzu danych osobowych, na zasadach wskazanych w Regulaminie i Polityce Prywatności serwisu ARCHIPELAG.pl.
Jeśli chcesz także otrzymywać bonusy i informacje dotyczące akcji promocyjnych naszych i naszych Partnerów, wyraź zgodę dodatkową i zaznacz odpowiednie pole. Wyrażam zgodę na przetwarzanie moich danych osobowych przez administratora, którym jest Pracownia Projektowa ARCHIPELAG A. Wójciak, R. Wójciak Sp. J. z siedzibą: ul. M. Smoluchowskiego 56/3, 50-372 Wrocław, nr KRS 0000123673, NIP: 897-16-05-744, REGON: 931987209:
Na podstawie art. 13 Rozporządzenia Parlamentu Europejskiego i Rady (UE) 2016/679 z dnia 27 kwietnia 2016 r. w sprawie ochrony osób fizycznych w związku z przetwarzaniem danych osobowych i w sprawie swobodnego przepływu takich danych oraz uchylenia dyrektywy 95/46/WE (RODO) informujemy Cię, że (przeczytaj klauzulę informacyjną):
czytaj całość ›


