Ulubione projekty
Twoja lista jest pusta
Dodano projekt
Usunięto projekt
- Powierzchnia użytkowa 159.54 m²
- Dodatkowo:
- garaż 42.68 m²
- strych 0.27 m²
- • piwnica 53.51 m²
- Powierzchnia zabudowy 176.47 m²
- Pow. netto 316.56 m²
- Kubatura 810.71 m³
- Wymiary budynku 11.50 × 17.10 m
- Wysokość budynku 10.86 m
- Kąt nachylenia dachu 39o (2°)
- Powierzchnia dachu 113 m²
- Minimalne wymiary działki 17.50 x 27.30 m
Cena projektu
5 360 pln
6 700 pln
- Katalogowa karta projektu (964 KB)
- Błażej G2 (bliźniak) - charakterystyka energetyczna (wersja domu z wentylacją grawitacyjną)Budynek spełnia wymagania WT2017 (559 KB)
- Błażej G2 (bliźniak) - charakterystyka energetyczna (wersja domu z wentylacją mechaniczną)Budynek spełnia wymagania WT2021 (559 KB)
- Błażej G2 (bliźniak) - zestawienie materiałów SSZ (71 KB)
Zadaj pytanie do projektu Błażej G2 (bliźniak)
Jesteś zainteresowany/a tym projektem? Architekt dyżurny przygotuje dla Ciebie materiały z projektu technicznego. Zostaw nam swoje dane, powiadomimy Cię, gdy pliki będą dostępne.
Zamawiając usługi forum i dzienników budowy, przyjmujesz do wiadomości i wyrażasz zgodę na świadczenie tych usług i przetwarzanie przez Usługodawcę, którym jest Pracownia Projektowa ARCHIPELAG A. Wójciak, R. Wójciak Sp. J., jako Administratora danych, podanych w formularzu danych osobowych, na zasadach wskazanych w Regulaminie i Polityce Prywatności serwisu ARCHIPELAG.pl.
Jeśli chcesz także otrzymywać bonusy i informacje dotyczące akcji promocyjnych naszych i naszych Partnerów, wyraź zgodę dodatkową i zaznacz odpowiednie pole. Wyrażam zgodę na przetwarzanie moich danych osobowych przez administratora, którym jest Pracownia Projektowa ARCHIPELAG A. Wójciak, R. Wójciak Sp. J. z siedzibą: ul. M. Smoluchowskiego 56/3, 50-372 Wrocław, nr KRS 0000123673, NIP: 897-16-05-744, REGON: 931987209:
Na podstawie art. 13 Rozporządzenia Parlamentu Europejskiego i Rady (UE) 2016/679 z dnia 27 kwietnia 2016 r. w sprawie ochrony osób fizycznych w związku z przetwarzaniem danych osobowych i w sprawie swobodnego przepływu takich danych oraz uchylenia dyrektywy 95/46/WE (RODO) informujemy Cię, że (przeczytaj klauzulę informacyjną):
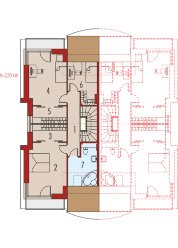
czytaj całość ›Piwnica
- 1. Korytarz 12.74 m²
- 2. Toaleta 3.26 m²
- 3. Pom. gospodarcze 20.76 m²
- 4. Pom. gospodarcze 16.75 m²
- 5. Garaż 42.68 m²
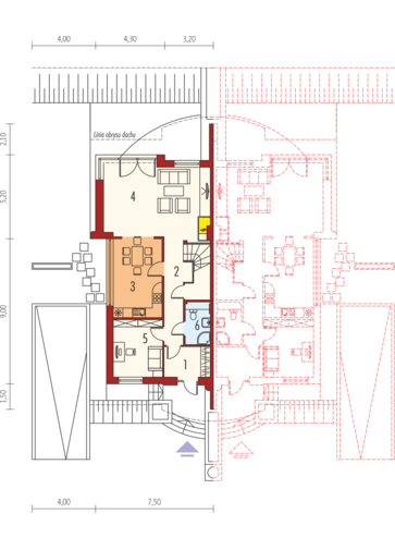
Parter
- 1. Wiatrołap 5.37 m²
- 2. Hol 7.63 m²
- 3. Kuchnia + jadalnia 14.79 m²
- 4. Pokój dzienny 30.42 m²
- 5. Gabinet 10.86 m²
- 6. Łazienka 3.99 m²
Poddasze
- 1. Korytarz 7.33 m²
- 2. Sypialnia 17.92 m²
- 3. Garderoba 5.49 m²
- 4. Sypialnia 17.76 m²
- 5. Garderoba 5.49 m²
- 6. Sypialnia 8.62 m²
- 7. Łazienka 7.85 m²
Zużycie energii
Wskaźnik EP dla domu z wentylacją grawitacyjną (szczegółowe dane w charakterystyce energetycznej)
Wskaźnik EP określa roczne zapotrzebowanie domu na nieodnawialną energię pierwotną do ogrzewania, wentylacji oraz przygotowania ciepłej wody użytkowej.
Szacunkowy koszt budowy
| STANDARDOWE (uśrednione) [zł] |
||
|---|---|---|
| Stan surowy otwarty: | 411 528 (1) | |
| Stan surowy zamknięty: | 506 496 (1) | |
| Stan deweloperski: | 838 884 (1) | |
| Instalacje wewnętrzne: | 83 888 (1) | |
|
(1) Wyliczone według współczynników (2) Wyliczone według kosztorysu |
||
Forum
Dzienniki budowy
Archipelag dla Ciebie
Polecane technologie
Wypełnij formularz, skontaktujemy się z Tobą.
Zamawiając usługi forum i dzienników budowy, przyjmujesz do wiadomości i wyrażasz zgodę na świadczenie tych usług i przetwarzanie przez Usługodawcę, którym jest Pracownia Projektowa ARCHIPELAG A. Wójciak, R. Wójciak Sp. J., jako Administratora danych, podanych w formularzu danych osobowych, na zasadach wskazanych w Regulaminie i Polityce Prywatności serwisu ARCHIPELAG.pl.
Jeśli chcesz także otrzymywać bonusy i informacje dotyczące akcji promocyjnych naszych i naszych Partnerów, wyraź zgodę dodatkową i zaznacz odpowiednie pole. Wyrażam zgodę na przetwarzanie moich danych osobowych przez administratora, którym jest Pracownia Projektowa ARCHIPELAG A. Wójciak, R. Wójciak Sp. J. z siedzibą: ul. M. Smoluchowskiego 56/3, 50-372 Wrocław, nr KRS 0000123673, NIP: 897-16-05-744, REGON: 931987209:
Na podstawie art. 13 Rozporządzenia Parlamentu Europejskiego i Rady (UE) 2016/679 z dnia 27 kwietnia 2016 r. w sprawie ochrony osób fizycznych w związku z przetwarzaniem danych osobowych i w sprawie swobodnego przepływu takich danych oraz uchylenia dyrektywy 95/46/WE (RODO) informujemy Cię, że (przeczytaj klauzulę informacyjną):
czytaj całość ›

